Akzeptieren Sie zuerst die Cookies um die Karte zu laden.

Cookies jetzt akzeptieren.

Zwei-Generationen-Haus
Erweiterung und Aufstockung
Ebmatingen, 2020

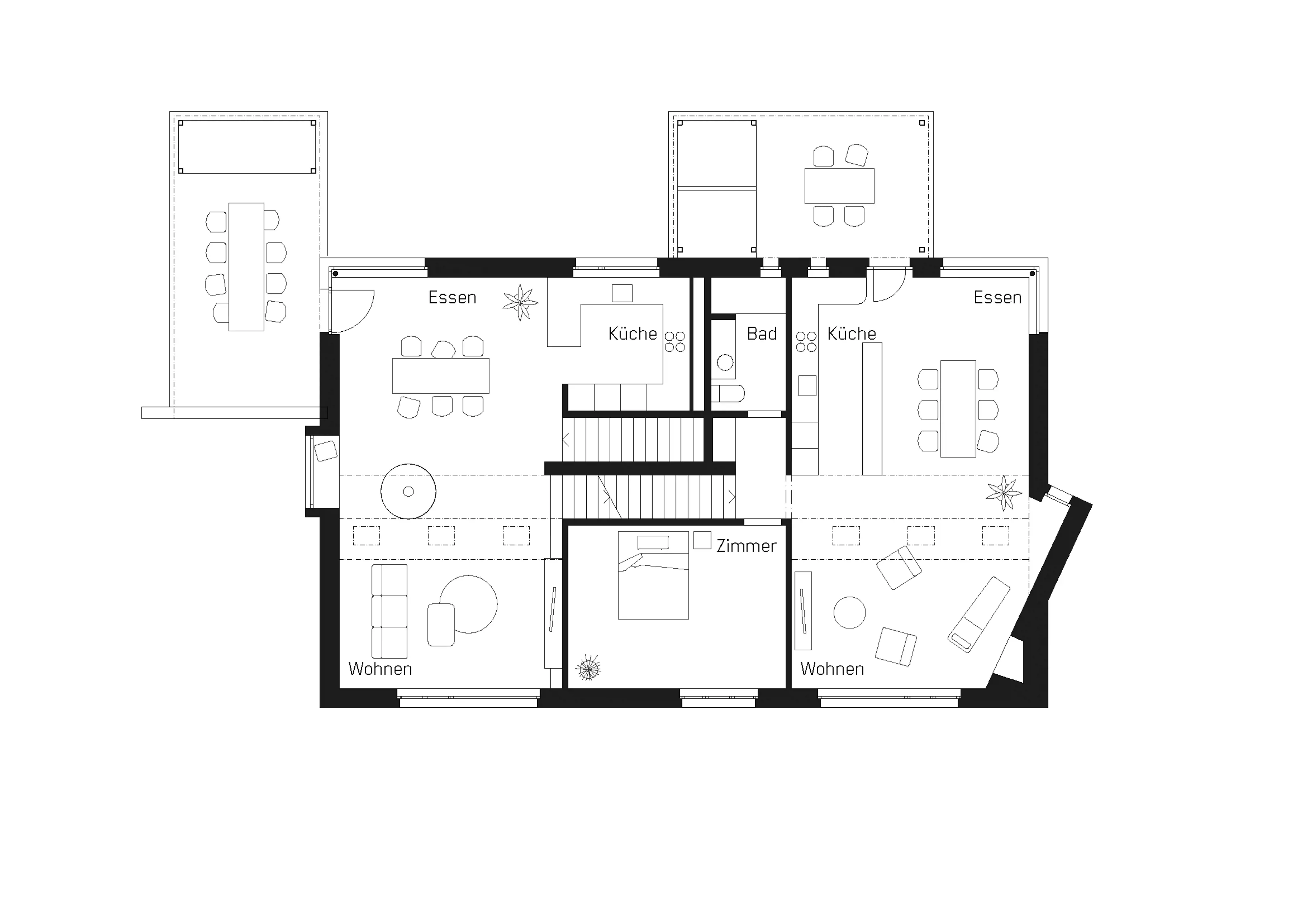
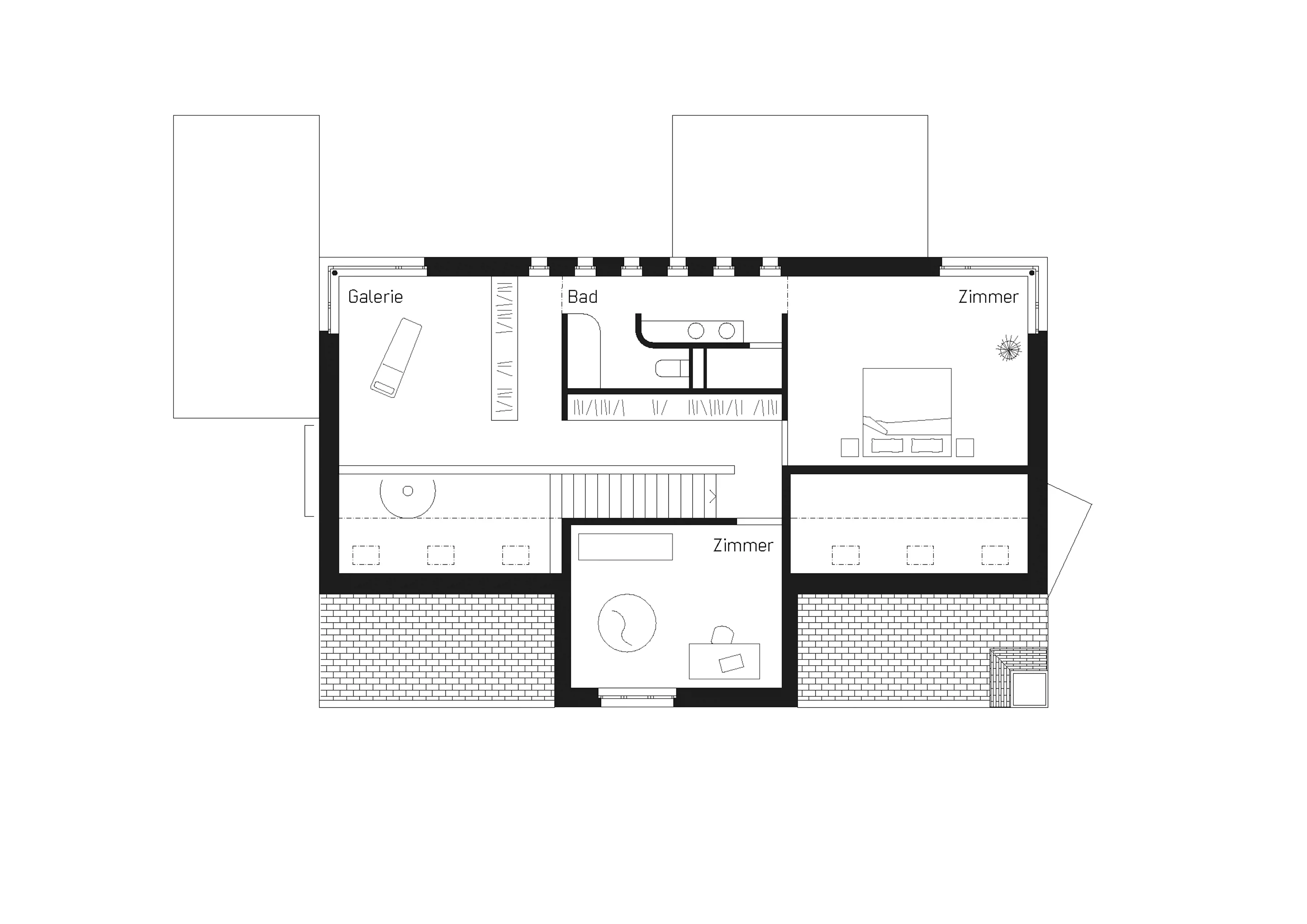
Um das ehemalige Einfamilienhaus zu einem Zwei-Generationen-Haus zu transformieren, wurde es nach Nordwesten erweitert und aufgestockt. Die interne Erschliessung erfolgt über zwei gegenläufige und zentral angeordnete Treppen. Dadurch ist die Ausrichtung beider Wohneinheiten ausgewogen. Eine Wohnung verfügt über 3.5 Zimmer mit 115 m2 und erstreckt sich vom Unter- bis ins Erdgeschoss. Die zweite ist eine 4.5 Zimmer-Wohnung mit 150 m2 über alle drei Geschosse. Die Wohn- und Essbereiche beider Wohneinheiten beinhalten einen überhohen Bereich und werden durch Oberlichter zusätzlich belichtet. 

Auftraggeber:in

privat

Architektur moos. giuliani. herrmann. architekten.
Roger Moos, Christoph Schneider, Alexander Sperlich, Francesco Bellini, Charlyna Diggelmann
Bauleitung

moos. giuliani. herrmann. architekten

Dominic Bosshard

Statik

SJB Kempter Fitze AG, Eschenbach

Bauphysik

Herrmann Partner AG, Andelfingen

Fotografie

KASPARTHALMANN AG, Uster

Spezialist:innen

Film: Stephan Christen, Zürich

Eckdaten

2 Wohneinheiten, GF SIA 416: 444 m2
Bauzeit: 11 Monate
Bauvollendung: Juni 2020 

umbauen und renovieren